駿東郡長泉町 中古戸建て
- 所在地
- 駿東郡長泉町東野121-51
- 交 通
- JR御殿場線「長泉なめり」駅 バス14分「クレマチスの丘」停歩3分
販売価格13,800万円
| 土地面積 | 建物面積 | 間取り | 築年月 |
|---|---|---|---|
| 2218.63㎡ | 334.54㎡ | 4SLDK | 2003年4月 |
物件画像
画像をクリックすると拡大します
YOUTUBE動画
駿東郡長泉町東野121-51の中古一戸建 13,800万円のこだわりポイント
愛鷹山山麓に広がる駿河平に立地するスルガ平分譲地内の中古戸建てです。
個人住宅はもちろん、別荘・貸別荘・保養所・集会所等様々な用途にご利用頂けます。
建物は大変綺麗にお使いになられています。
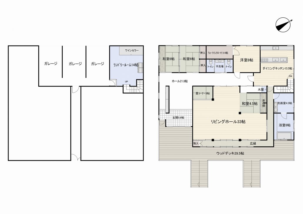
インナーガレージ3台分確保、他170㎡の駐車スペースがございます。
(東南側お庭スペースへも車で進入可能です。)
東南側約400㎡の庭スペースに加え、別途南西側約1109㎡の庭園有り。
リビングやホール、ダイニングにはカリン無垢材を使用しています。
リビングは勾配天井仕上げの為、天井高も確保されております。
御影石貼りの浴室窓からは緑豊かな眺望が望めます。
和室4.5帖横には水屋も設置されております。
部屋数も十分ございますので、大人数での滞在も可能です。
キッチンも広く、大勢で楽しく調理出来ます。
長泉町は、伊豆半島ユネスコ世界ジオパークのひとつです。複数のジオサイトなど豊かな自然に恵まれた環境です。
周辺には自然公園複数のゴルフ場等があり様々な楽しみ方が出来るエリアです。
美術館や静岡サッカーミュージアムなど文化施設も充実しています。
新幹線三島駅から車で16分と交通アクセスも便利な環境です。
是非お気軽にお問い合わせ下さい。
個人住宅はもちろん、別荘・貸別荘・保養所・集会所等様々な用途にご利用頂けます。
建物は大変綺麗にお使いになられています。
インナーガレージ3台分確保、他170㎡の駐車スペースがございます。
(東南側お庭スペースへも車で進入可能です。)
東南側約400㎡の庭スペースに加え、別途南西側約1109㎡の庭園有り。
リビングやホール、ダイニングにはカリン無垢材を使用しています。
リビングは勾配天井仕上げの為、天井高も確保されております。
御影石貼りの浴室窓からは緑豊かな眺望が望めます。
和室4.5帖横には水屋も設置されております。
部屋数も十分ございますので、大人数での滞在も可能です。
キッチンも広く、大勢で楽しく調理出来ます。
長泉町は、伊豆半島ユネスコ世界ジオパークのひとつです。複数のジオサイトなど豊かな自然に恵まれた環境です。
周辺には自然公園複数のゴルフ場等があり様々な楽しみ方が出来るエリアです。
美術館や静岡サッカーミュージアムなど文化施設も充実しています。
新幹線三島駅から車で16分と交通アクセスも便利な環境です。
是非お気軽にお問い合わせ下さい。
駿東郡長泉町東野121-51の中古一戸建 13,800万円の物件概要
| 所在地 | 駿東郡長泉町東野121-51 | ||
|---|---|---|---|
| 交通 | JR御殿場線「長泉なめり」駅 バス14分「クレマチスの丘」停歩3分 | ||
| 価格 | 13,800万円 | ||
| 物件名称 | 駿東郡長泉町 中古戸建て | 物件番号 | 42468 |
| 物件種別 | 中古一戸建 | 土地面積 | 2218.63㎡ |
| 建物面積 | 334.54㎡ | 間取 | 4SLDK |
| 完成 | 2003年4月 | 接道状況 | 北西 5.8M 公道 |
| 土地権利 | 所有権 | 都市計画 | 市街化調整区域 |
| 地目 | 宅地 | 用途地域 | 無指定地域 |
| 建ぺい率 | 40% | 容積率 | 60% |
| 現況 | 空家 | 駐車場 | 3台以上 |
| 引渡し時期 | 即時 | 引渡し条件 | 現況渡し |
| 小学区 | 長泉町立北小学校 ※1 | 中学区 | 駿東郡長泉町立北中学校 ※1 |
※1 実際の通学区域とは異なる場合がありますので必ず各学校毎の通学区域住所をご確認ください。



